Search Properties

Lower Downs Road, London, SW20

London

£1,600 pcm

1 x 1 x
Department:
Lettings
Reference:
lettings_10711223
Postcode:
SW20 8QB
Type:
Apartment
Availability:
To Let
Receptions:
1
Furnished:
Unfurnished
Available Date:
2026-01-10

Property features

  • DOUBLE BEDROOM
  • BUILT IN WARDROBE
  • DOUBLE GLAZED
  • CENTRALLY HEATED
  • PARKING SPACE
  • UNFURNISHED
  • NEW BATHROOM
  • WASHING MACHINE
  • GREAT LOCATION
  • Permit Parking

Summary

Heaven Estate Agent present a one bedroom flat with parking in Wimbledon.

Details

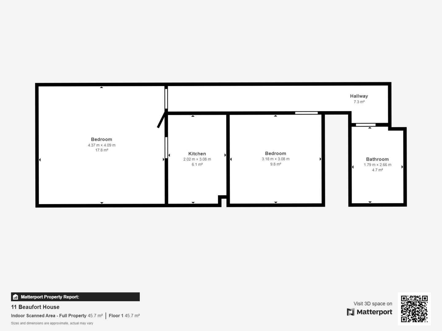
Available from 10th January 2026 is this good sized, unfurnished, one bedroom apartment in a purpose built block. Located just of Worple Road and within walking distance of Wimbledon Chase and Raynes Park Train Stations.
Accommodation comprises of one double bedroom with built in wardrobe. Living room with Juliet Balcony and space for settee, dining table and chairs.
The Kitchen comes with oven, gas hob and washing machine as well as plenty of storage space. There is also a recently fitted bathroom with bath and shower facilities. The flat is carpeted throughout and is bright and airy.
Close to transport links and with the added benefit of an allocated car parking space we advise early registration to view.

EPC Rating: C

Floor Plans

EPC

Request Further Details

Or arrange a viewing

Recent Blog Posts

Latest news and updates

A Comprehensive Guide to Buying Your First Home in the UK 9th January Buying

A Comprehensive Guide to Buying Your First Home in the UK

Purchasing your first home is a significant milestone, and it’s an exciting journey filled with opportunities and challenges. The UK’s…

Read More
The Benefits of Using a Local Estate Agent vs. Online Platforms 3rd December Buying Selling

The Benefits of Using a Local Estate Agent vs. Online Platforms

In today’s digital age, there’s no shortage of online platforms and property portals that promise to make buying or selling…

Read More
The Importance of EPC Ratings for Home Sellers and Buyers 15th September Buying Selling

The Importance of EPC Ratings for Home Sellers and Buyers

Energy Performance Certificates (EPCs) are a vital part of the property market in the UK, offering valuable insights into a…

Read More